Bauausschuss beschließt Bebauungsplan einstimmig
Hegneberg wird erweitert

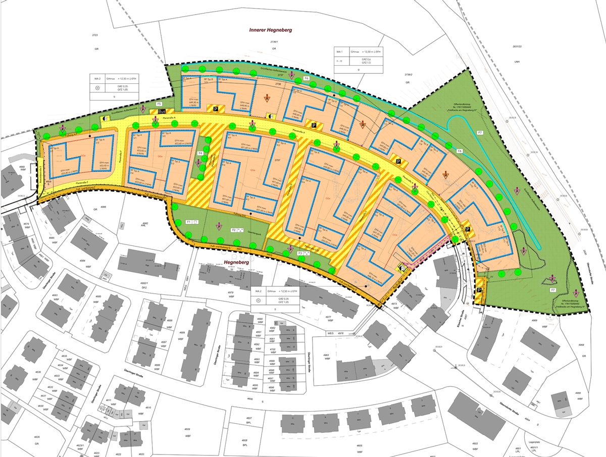
Grünes Licht für 250 neue Wohnungen: Der UBV-Ausschuss des Rottweiler Gemeinderats hat dem Bebauungsplan Hegneberg zwei zugestimmt.
Rottweil – Die öffentliche Auslegung sowie die Beteiligung der Behörden und Träger öffentlicher Belange hat zwar noch Anregungen erbracht. Diese haben aber nicht zu wesentlichen Änderungen des Bebauungsplans geführt, wie die städtische Abteilungsleiterin Sandra Graf dem Rat mitteilte. Bei einer Bürger-Information sei das Projekt mit etwa 20 Interessenten besprochen worden. Das meist angesprochene Thema seien dort die Parkplätze gewesen.
Heizzentrale
Für die Wärmeversorgung ist eine Heizzentrale erforderlich. Eine solche ist innerhalb des Plangebiets aber nicht zulässig. Die ENRW suche daher nach einem geeigneten Standort außerhalb des Gebiets, berichtete Graf.
Die Stadt sei auf der Suche nach Investoren, sagte Fachbereichsleiter Rudolf Mager. Er wollte aber nichts überstürzen: Die Bebauung werde nicht alles auf einmal sondern sukzessive erfolgen. Und das geht Hand in Hand mit der Fertigstellung des neuen Gefängnisses.
Der formelle Aufstellungsbeschluss ist Sache des Gemeinderats-Plenums. Dieser tagt am kommenden Mittwoch, 26. November, ab 17 Uhr im Sitzungssaal des neuen Rathauses.