Das Wohnbauprojekt Haldenhof verzögert sich weiter. Gar von Scheitern ist die Rede. Der Grund: eine alte Streuobstwiese auf dem Gelände des 2016 abgebrannten Haldenhofs.
Schramberg. In der letzten Sitzung des Gemeinderats vor den Sommerferien hatte Gemeinderat Thomas Brantner (CDU) unter „Bekanntgaben, Anfragen, Anregungen“ nach dem Bebauungsplan Haldenhof gefragt. Darüber sei wohl auch im Umweltbeirat gesprochen worden. Brantner wollte wisse, ob es zu Verzögerungen komme.
Naturschutzbehörde stellt sich quer
Stadtplaner Joschka Joos antwortete, nach der Offenlage im vergangenen Jahr sei es nicht zum Satzungsbeschluss gekommen. „Es geht um eine schützenswerte Streuobstwiese.“ Man habe von Anfang an gewusst, dass man diese Streuobstwiese durch das Anlegen einer neuen Streuobstwiese ausgleichen muss. Die Auskunft des Landratsamtes sei allerdings gewesen, dass man das ausgleichen könne, so Joos.
Bei der ersten Offenlage habe es keine Bedenken der Naturschutzbehörde gegeben, auch nicht bei der zweiten, sofern man einen Ausgleich schaffe. Allerdings habe die untere Naturschutzbehörde darauf hingewiesen, dass man vor dem Fällen der Bäume einen entsprechenden Antrag stellen müsse. Die Stadt habe inzwischen auch auf einem Grundstück auf dem Lienberg eine Streuobstwiese als Ausgleich für die Haldenhofbäume angelegt.

Als die Stadt nun den Antrag auf Fällen der Bäume gestellt habe, habe das Landratsamt erklärt, man können dies „so nicht genehmigen“, so Joos. Die Stadt müsse das Fällen der Bäume mit dem besonderen öffentlichen Interesse für das Projekt begründen. Das seien beispielsweise fehlende Bauplätze. „Wir haben ein umfangreiches Schreiben dazu verfasst“, berichtete Joos. Das liege seit Anfang Juli beim Landratsamt.
Es sei für die Stadtverwaltung frustrierend, wenn die Naturschutzbehörde zunächst ein OK gebe, dann aber doch ablehne. Auch der BUND sei gefragt worden, habe erst nicht geantwortet und nun „im letzten Moment“ Einwände erhoben.
Was machen die Projektträger?
Brantner äußerte „großes Unverständnis“ . Er fragte, ob die Projektentwickler und der private Miteigentümer des Baugeländes möglicherweise abspringen, wenn das Projekt nicht, wie vorgesehen, umgesetzt werden könne. Joos versicherte, der Projektentwickler sei nicht abgesprungen.
Bei einem Gespräch mit dem Landratsamt und dem BUND habe letzterer erklärt, man könne bauen, wenn man die Streuobstwiese ausspare. Das würde aber die Fläche um etwa die Hälfte verkleinern, so der Projektträger, dann sei das Vorhaben „wirtschaftlich nicht darstellbar“.
Eisenlohr bat, das Antwortschreiben des Landratsamts abzuwarten. Es gebe noch keinen Grund, „den Teufel an die Wand zu malen“.

BUND: Rechtslage hat sich geändert
Die NRWZ hat den Vorsitzenden des BUND in Schramberg Karl Pröbstle gefragt, weshalb sein Verein erst jetzt „wie die alt Fasnet“ (Brantner) Bedenken vortrage. Pröbstle verweist auf die gesetzlichen Grundlagen, die sich im Bund und im Land geändert haben. Seit etwa fünf Jahren ist das Fällen von Streuobstwiesenbäumen streng reglementiert. Ausnahmen gebe es nur, wenn das Fällen „unabwendbar“ sei.
Das Landesnaturschutzgesetz schreibt seit 31. Juli 2020 vor, dass eine Umwandlung einer Streuobstwiese nur noch möglich sei, „wenn die Gründe für die Umwandlung so gewichtig sind, dass der Erhalt dahinter zurückstehen muss“. Seit März 2022 gehören Streuobstwiesen laut Bundesnaturschutzgesetz zu geschützten Biotopen.
Als die Haldenhofplanungen begannen, seien die Bestimmungen noch nicht so strikt gewesen und die Aussichten auf Berücksichtigung der Einwände des BUND gering. „Die neue Gesetzeslage unterstreicht die Bedeutung von Streuobst für den Artenschutz und gibt uns einen besseren Hebel in die Hand, um die Interessen der Natur zu vertreten“, so Pröbstle. Auch habe es vor fünf Jahren noch keine aktive BUND-Ortsgruppe in Schramberg gegeben, die Widerspruch hätte einlegen können.

Alternativen vorgeschlagen
Im Dezember 2024 habe der BUND auf 18 Seiten dargelegt, welche Gründe gegen das Fällen sprechen und welche Vielzahl von Maßnahmen die Stadt ergreifen muss, um dieses doch zu begründen.
So müsse die Stadt, bevor sie das Fällen beantrage, „alle anderen Maßnahmen prüfen“, die das Fällen vermeiden könnten. Das sei bisher nicht geschehen. Der BUND habe in seiner Stellungnahme betont, dass das Fällen der Bäume aus seiner Sicht nicht in Frage käme. Diese Stellungnahme habe das Landratsamt „voll unterstützt“, so Pröbstle.

In der Stellungnahme, die der NRWZ vorliegt, kommt die BUND-Regionalgeschäftsführerin Katharina Baudis zum Schluss: „Nach unserer Einschätzung handelt es sich um einen hochwertigen, alten Streuobstbestand mit überdurchschnittlicher Lebensraum- und Artenausstattung. Die genannten Kompensations- und Ausgleichsmaßnahmen können den Verlust nicht in gleichem Maß ausgleichen.“
Um die Haldenhofbebauung doch noch zu ermöglichen, schlägt Baudis eine Modifizierung des Bebauungsplans vor: „Die Planung könnte räumlich nach Süden verschoben werden. Die dadurch deutlich weniger entfallenden Streuobstbäume müssen mindestens im Verhältnis 1:3 (alt-neu) ersetzt werden.“ Auf die Kompromissvorschläge des BUND sei die Stadt jedoch nicht eingegangen und habe stattdessen an einer längeren Begründung zur Beseitigung der Streuobstbäume gearbeitet.

Stadt antwortet
Inzwischen habe die Stadt ein neues Papier ausgearbeitet, um zu begründen, weshalb die Haldenhofbebauung unumgänglich sei, berichtet Pröbstle. Dabei argumentiere die Stadt unter anderem mit der Bevölkerungsentwicklung. Pröbstle weist seinerseits darauf hin, dass es in Schramberg eine große Anzahl von erschlossenen, aber unbebauten Grundstücken gebe. Im Umweltbeirat gehe man hier von etwa 85 Hektar aus.
Man bezweifle, dass die Stadt schon alles getan habe, um die Bebauung dieser bereits erschlossenen Grundstücke zu forcieren. Die seit der Grundsteuerreform mögliche Grundsteuer C für solche Grundstücke habe Schramberg beispielsweise bewusst nicht eingeführt.

Pröbstle kritisiert, dass die Haldenhof-Planer die aktuelle Gesetzeslage in ihrem Plan nicht berücksichtigt hätten. Auch der 1:1 Ausgleich im Lienberg für die alte Streuobstwiese sei bei weitem nicht ausreichend. Der BUND verlange ja, dass je gefälltem Baum mindestens drei junge Obstbäume gepflanzt werden müssten.
Lange Vorgeschichte
Im Jahr 2016 brannte der historische Haldenhof bis auf die Grundmauern ab.

2019 kam die Stadt mit dem Vorschlag, das Gebiet zu bebauen.

Konkreter wurde es 2020: Doch das beschleunigte Verfahren nach dem Paragraf 13b scheiterte an einer Grundstücksfrage. Es muss ein normales Bebauungsplanverfahren her, das wurde im Mai 2021 klar.
Ein erster Plan kam 2021 in den Rat.

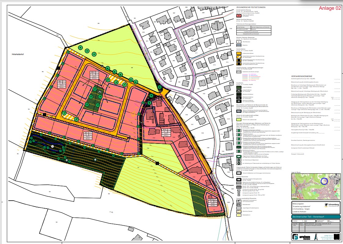
Im September 2024 legte die Stadt den Bebauungsplan ein zweites Mal öffentlich aus. Er hätte im Rat anschließend verabschiedet werden sollen. In diesem Jahr sollte die Erschließung beginnen. Doch daraus wird wohl nichts.


Informationen zu Streuobstwiesen und ihrem gesetzlichen Schutz findet man hier.












Die neuesten Kommentare