Der lang gehegte Wunsch nach einem Lebensmittelgeschäft in Waldmössingen ist einen Schritt weiter. Der Ausschuss für Umwelt und Technik (AUT) hat dem Gemeinderat einstimmig empfohlen, den „Vorhabenbezogenen Entwurf“ eines Bebauungsplans für einen Lebensmittelfilialbetrieb Waldmössingen zu beschließen. Der Beschluss im Gemeinderat am Donnerstag gilt damit nur noch als Formsache.
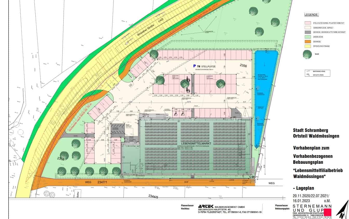
Schramberg. Schon im Sommer 2021 hatte der Rat beschlossen, einen solchen Bebauungsplan aufstelle zu lassen, damit ein Investor einen Markt für „Norma“ dort errichten kann. Wie Stadtplaner Joschka Joos im AUT berichtet hat, habe es seither einige Umplanungen gegeben. Statt des ursprünglich geplanten Kreisverkehr am Ortsausgang Richtung Winzeln werde es nun lediglich eine Linksabbiegespur geben. Das reiche aus, wie eine Verkehrszählung ergeben habe, so Joos. „Und es ist deutlich günstiger als ein Kreisverkehr.“

Keine Konkurrenz für Fluorn-Winzeln
Weil das Artenschutzgutachten mehr als ein Jahr gedauert habe, sei man erst jetzt im Ausschuss. Bei der „Frühzeitigen Beteiligung“ habe es etliche Fragen wegen des Kreisverkehrs gegeben. Die seien nun aber hinfällig.
Fluorn–Winzeln habe die Sorge geäußert, der eigene Lebensmittelmarkt könnte durch die Konkurrenz in Waldmössingen leiden. Ein Gutachten der GMA komme dabei zum Ergebnis, dass das Beeinträchtigungsverbot eingehalten werde, so Joos.
Auch die Forderung nach dem Ökoausgleich werde der Investor nun durch einen externen Ausgleich regeln. Andere Auflagen zum Abwasser und Bodenschutz, zur Größe der Bäckerei seien in den Bebauungsplanentwurf eingearbeitet. Inzwischen seien alle Unterlagen beisammen, versicherte Joos, und der Rat könnte die Offenlegung beschließen.
Wer zahlt für den Linksabbieger?
Oberbürgermeisterin Dorothee Eisenlohr erkundigte sich nach den Kosten für die Linksabbiegespurt und wer dies zahlen werde. Ein Kreisverkehr hätte nicht nur dem Investor gedient, die Linksabbiegespur aber schon, so Eisenlohr.
Ortsvorsteher Reiner Ulrich war zuversichtlich, dass der Investor zahlen werde, er verwies aber auf „den hohen Wert der Nahversorgung“. Das wisse der Investor selbst, entgegnete Eisenlohr. Joos erklärte, die Kostenübernahme sei noch nicht geregelt.
Jürgen Kaupp (CDU) fragte mit Blick auf eine Verkehrs-Insel, ob die nur aufgemalt werde oder richtig gebaut werde. Er sah Probleme für LKWs bei einer gebauten Insel. Tiefbau-Chef Konrad Ginter ergänzte, man plane eine Fußgängerampel an der Stelle, an der zunächst der Kreisverkehr geplant war. Beim Linksabbieger werde die „Insel“ nur aufgemalt.
Die Rätinnen und Räte waren zufrieden und beschlossen, dem Rat zu empfehlen, den Plan nun auslegen zu lassen und die Träger öffentlicher Belange anzuhören.












Die neuesten Kommentare