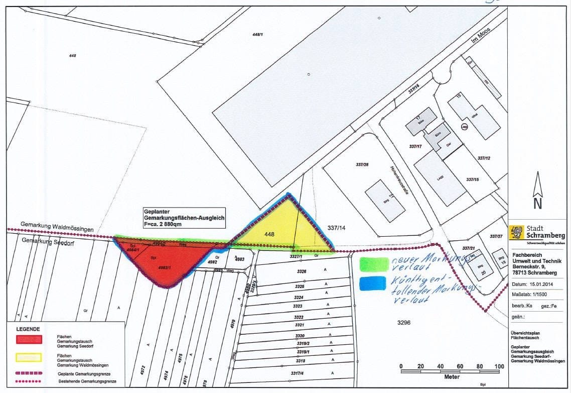
Eigentlich war es gut gemeint, was die Gemeinderäte von Dunningen und Schramberg vor zehn Jahren beschlossen. Beim interkommunalen Industriegebiet Waldmössingen Seedorf (IKGI) ragten zwei merkwürdige Dreiecke in das jeweils andere Gebiet. „Tauschen wir die Dreiecke aus, begradigen die Gemarkungsgrenze“, war der naheliegende Gedanke. Insbesondere auch deshalb, weil so die Erweiterung der Möbelfabrik ArteM möglich geworden wäre, ohne auf Dunninger Gebiet zu reichen.
Prospekt der Woche
Das Relax-2000-Naturschlafsystem mit individuell anpassbarem Tellersystem, Naturlatex-Matratzen, ergonomischen Kissen sowie Massivholzbetten – Aktionswochen bis zum 18. April 2026 mit Aktionsgutschein über 150 Euro beim Kauf eines kompletten Schlafsystems.
Schramberg. Nun ist ArteM Geschichte, die Erweiterung kam nie zustande. Stattdessen macht die damalige Begradigung den Planerinnen und Planern für die Erweiterung des interkommunalen Industriegebiets „erhebliche Schwierigkeiten, da die zugehörigen Flächennutzungspläne nicht nachgeführt wurden“, wie es in einer Vorlage von Ralf Heinzelmann für den Gemeinderat heißt.
Flächennutzungspläne sind das Problem
Nun müssen die Flächennutzungspläne an die heutigen Bedingungen angepasst werden und das geht am einfachsten, wenn wieder die alten Besitzverhältnisse hergestellt sind, so der Geschäftsführer des IKGI Heinzelmann. Dann könnten die beiden Kommunen die Flächennutzungspläne für die Erfordernisse des IKGI anpassen.
Der Waldmössinger Ortschaftsrat und der Verwaltungsausschuss haben das Problem bereits beraten und für die Rückabwicklung votiert.
Die Gemeinderätinnen und Räte sahen das ähnlich und stimmten einstimmig dafür, den damaligen Gebietstausch rückabzuwickeln.











Die neuesten Kommentare