Schramberg. Aus dem ursprünglichen Beki ist nun ein W-Ki geworden. Doch ein Betriebskindergarten soll es immer noch werden. Das versicherte die Vorsitzende des Waldmössinger W-Ki-Fördervereins Karin Eichenlaub bei der Vorstellung des Projekts am Donnerstagabend im Verwaltungsausschuss des Gemeinderats.
Zunächst hatte die für Kitas und Schulen verantwortliche Abteilungsleiterin Kerstin Flaig den Ausschussmitgliedern eine gute Nachricht überbracht: „Auch Dunningen hat seit kurzem Interesse an einer Beteiligung mit einer Krippengruppe geäußert.“ Die Gemeinde lote aus, ob sie sich finanziell beteilige und dafür Plätze in der neuen Kita bekomme.
Vereinsgründung im Herbst
Eichenlaub, die zusammen mit Gabriel Klein und Steffen Engeser am Ratstisch Platz genommen hatte, berichtete vom letztes Jahr im Herbst gegründeten Vereins, der im Webertal im dortigen Industriegebiet eine Kindertagesstätte bauen und von der Rottweiler Stiftung „Lernen Fördern Arbeiten“ betreiben lassen möchte.
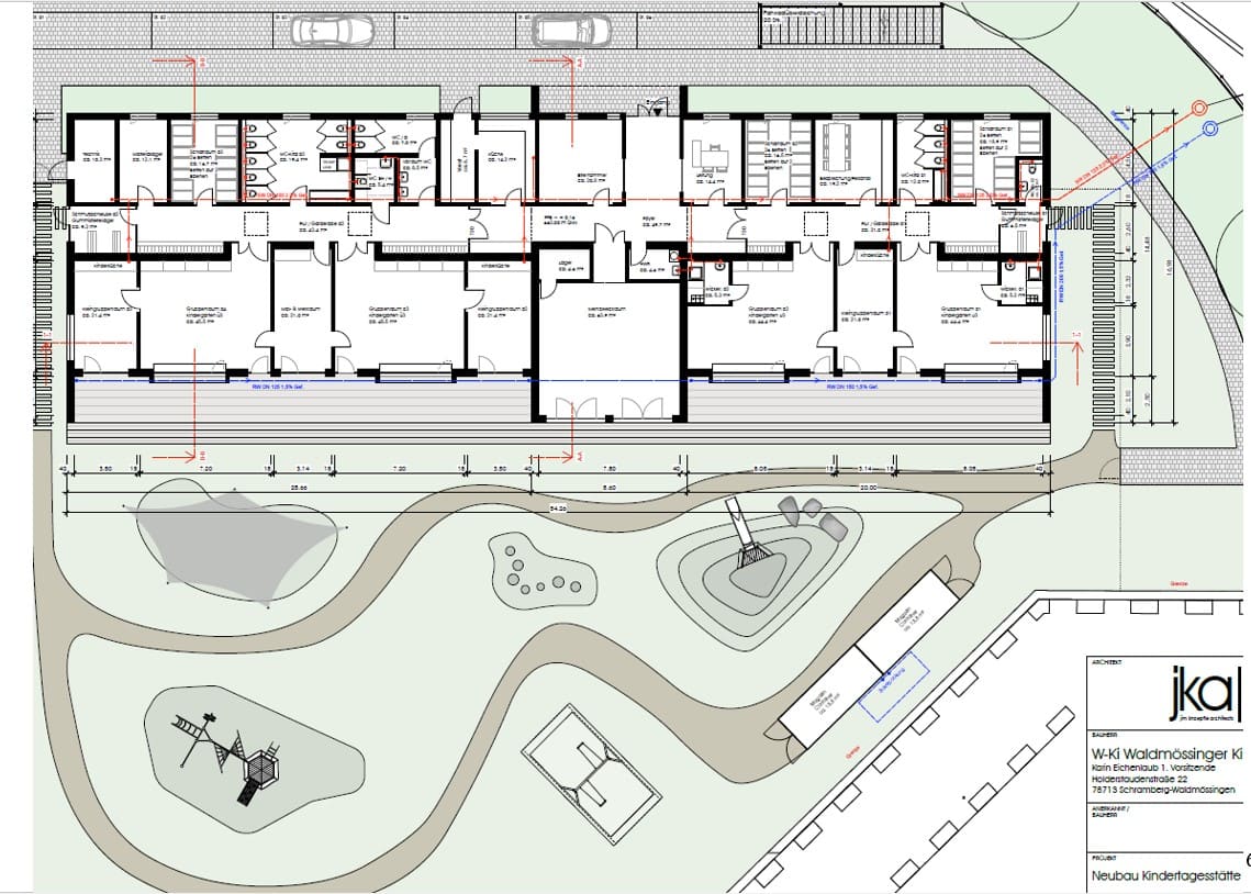
Ihr Architekt Daniel Günthner, habe jetzt „die eierlegende Wollmilchsau“ eines Kindergartens entworfen. Man habe die Möglichkeit zur Erweiterung und gar zum Aufstocken.

Lage ist ideal
Gabriel Klein, Mitarbeiter einer Holzbaufirma, schwärmte, das Grundstück liege nahe bei den Betrieben, sei gut erreichbar, verfüge über Parkplätze und habe einen direkten Zugang in die Natur.
Das Gebäude werde komplett aus Holz errichtet. Es werde einen Flügel für die Kita Kinder (Ü3) und einen für Krippenkinder (U 3) geben. Außerdem einen Mehrzweckraum für Sport und Veranstaltungen. Und wenn das Gebäude nicht mehr als Kita gebraucht werde, sei es leicht anders zu nutzen. Geplant sei eine Dachbegrünung und eine PV-Anlage.
„Wir bauen in neun Monaten“
Steffen Engeser erinnerte daran, dass man „einige Runden gedreht“ habe, bis man so weit gekommen sei. Derzeit prüfe der Verein die Fördermöglichkeiten und günstige Kredite etwa von der KfW-Banken.
Vor ein paar Tagen habe der Verein den Bauantrag eingereicht. Wenn der genehmigt sei, wolle man das Grundstück kaufen und loslegen. „In neun Monaten kann der Kindergarten gebaut sein“, so Engeser und Anfang nächstes Jahr an den Start gehen.“
Der Verein habe 32 Mitglieder und sei gemeinnützig. Man sei „eine sehr bunte Truppe“, der die Zusammenarbeit untereinander aber auch mit der benachbarten Lebenshilfe am Herzen läge. Demnächst gehe auch eine Internetseite www.w-ki.de online.
Zusammenarbeit mit Lebenshilfe
Eichenlaub ergänzte, dass man die Lebenshilfe auch für inklusive Projekte nutzen wolle, etwa für die Mahlzeiten oder die Gebäudereinigung. Sie versicherte, der neue W-Ki stehe allen Kindern offen, nicht nur für Familien von Mitgliedsfirmen oder aus Waldmössingen. Der Förderverein werde den Kindergarten bauen und sich auch ideell einbringen.
Ursprünglich sollte die Stiftung Bauherrin sein, hatte sich aber im vergangenen Jahr wegen der riskanten Baupreis- und Zinssteigerungen vom Bau verabschiedet. Als Unternehmer motiviere es die Beteiligten, „die Vereinbarkeit von Familie und Beruf ebenso wie die Attraktivität als Arbeitgeber zu fördern“, betonte Eichenlaub.

Eisenlohr: „Leuchtturmprojekt“
Oberbürgermeisterin Dorothee Eisenlohr wurde euphorisch: „Das Projekt hat das Potenzial für ein Leuchtturmprojekt.“. Es sei etwas Besonderes, dass nicht ein Großunternehmen so eine Kindertagesstätte baue, sondern viele kleine und mittlere Unternehmen.
Tanja Witkowski (SPD-Buntspecht) fragte,weshalb der Verein sich nun W-Ki nenne und ob damit auch eine Änderung des Konzepts verbunden sei. Außerdem wollte sich sicher sein, dass Kinder aus allen Stadtbezirken aufgenommen werden.
Namensänderung wegen Verwechslungsgefahr
„Aus Unbekümmertheit“ hätte die Gruppe ursprünglich den Namen Beki gewählt, der sie aber schon für ein Ernährungsprojekt für Kitas vergeben, erklärte Eichenlaub. Deshalb habe man sich in W-Ki umbenannt. Das W stehe für Waldmössingen und Webertal. Und, ja, Kinder aus allen Stadtbezirken seien willkommen, denn auch die Mütter und Väter kämen ja von dort, um in Waldmössingen zu arbeiten.
Thomas Brantner (CDU) sprach von einem „langen Weg“, den das projekt zurückgelegt habe und lobte: „Es wird etwas entstehen, das nicht in Konkurrenz zum bestehenden Kindergarten, sondern als Ergänzung zu sehen ist.“ Dass der Verein mit eigenen Mitteln baue, entlaste die Stadt.
Auch er denke, dass der W-Ki ein Leuchtturmprojekt werden könne und wünschte, dass der Verein bald die Baugenehmigung erhält. OB Eisenlohr dämpfte etwas die Euphorie. Der Antrag sei am 20. März eingegangen. „Geben Sie der Baurechtsbehörde die zulässigen drei Monat Zeit.“ Wenn die Eröffnung im Sommer 24 sei, sei das auch sehr gut.
Udo Neudeck (Freie Liste) betonte, es sei erfreulich, dass sich auch viele junge Leute beim W-Ki engagierten. „Das gibt Dynamik.“ Und schließlich hatte er eine Idee: „Wenn Ihr es wirklich schafft, das Ding in neun Monaten zu bauen, können wir Euch auch für andere Projekte holen.“ Allgemeine Heiterkeit.



